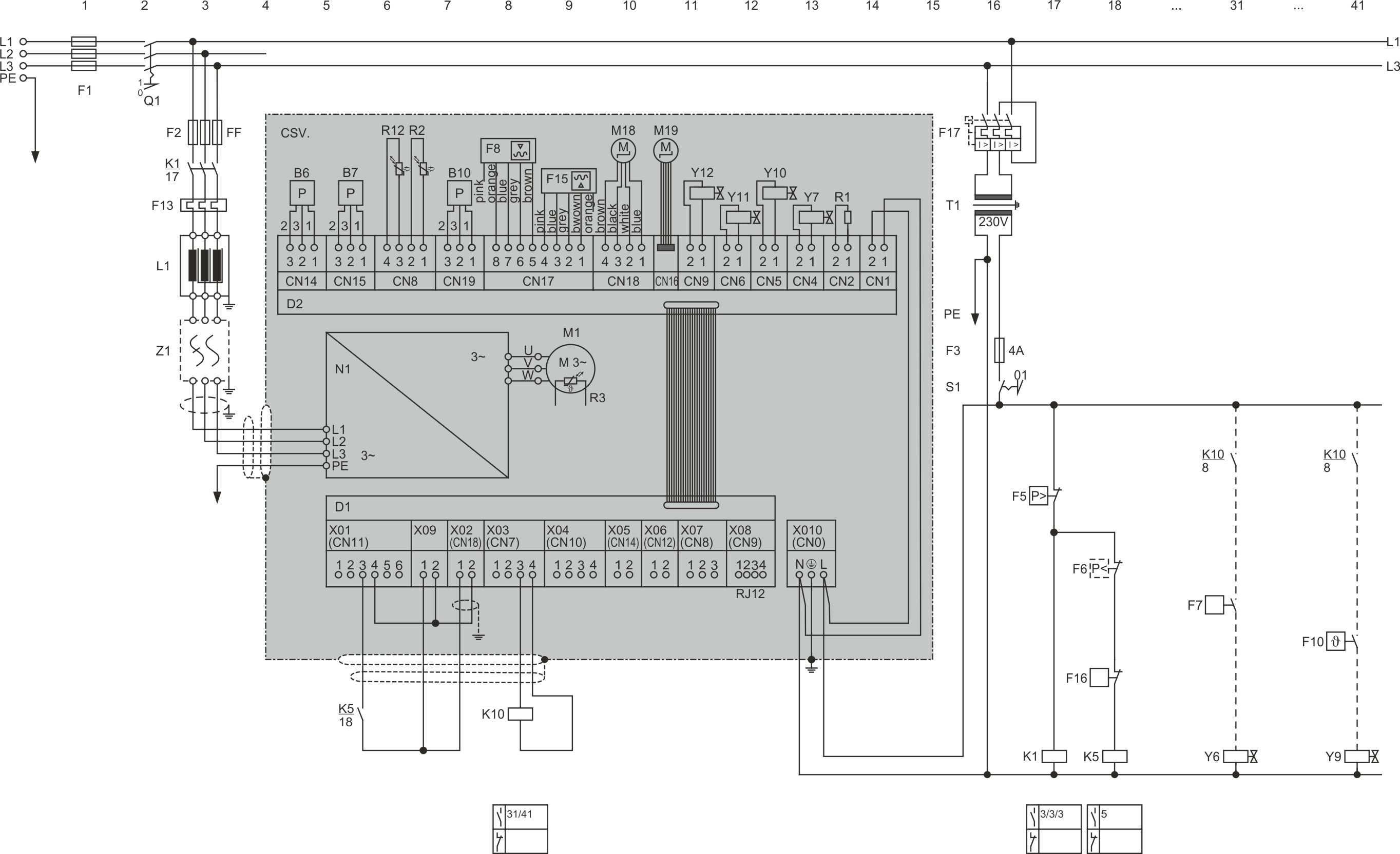
Série CSV. sans STO
Dernière modification du schéma :
12.02.2021
Abr. | Composant | |
|---|---|---|
B6 | Transmetteur de haute pression ① | |
B7 | Transformateur de basse pression ① | |
B10 | Transmetteur de pression à la sortie de la plaque de refroidissement | |
D1 | Carte de commande du CF ① | |
D2 | Carte d’extension du CF ① | |
F1 | Fusible principal | |
F2 | Fusible de compresseur | |
F3 | Fusible du circuit de commande | |
F5 | Interrupteur de haute pression | |
F6 | Interrupteur de basse pression | |
F7 | Retard à l’enclenchement « ECO » | |
F8 | Contrôleur de niveau d’huile (niveau d'huile minimal) ① | |
F10 | Thermostat de commande pour le refroidissement d’huile | |
F13 | Dispositif de protection contre les surcharges | |
F15 | Contrôleur de niveau d'huile (maximal) | |
F16 | Relais pour les fonctions de protection selon les besoins du client (antigel, débit d'eau, etc.) | |
F17 | Fusible du transformateur de commande | |
K1 | Contacteur de compresseur | |
K5 | Contacteur auxiliaire « compresseur est prêt à fonctionner » | |
K10 | Relais auxiliaire « Compresseur est en fonctionnement » (pour message au régulateur d'installation) | |
L1 | Self de réactance à courant de réseau ② | |
M1 | Moteur du compresseur ① | |
M18 | Vanne électronique de pression d'évaporateur pour la plaque de refroidissement | |
M19 | Détendeur électronique pour la plaque de refroidissement | |
N1 | Convertisseur de fréquences (CF) ① | |
Q1 | Interrupteur principal | |
R1 | Réchauffeur d’huile ① | |
R2 | Sonde de température d’huile (NTC) ① | |
R3 | Sonde de température dans le moteur (NTC) ① | |
R12 | Sonde de température à la sortie de la plaque de refroidissement | |
S1 | Commutateur de commande marche/arrêt | |
T1 | Transformateur de commande (exemple pour 230 V, nécessaire conformément à EN60204-1) | |
Y6 | Vanne magnétique « ECO » | |
Y7 | Vanne magnétique « LI » (option pour CSVH) ② | |
Y9 | Vanne magnétique « Conduite refroidisseur d’huile » | |
Y10 | Vanne magnétique « Refroidissement du CF » ① | |
Y11 | Vanne magnétique « tiroir Vi + » ① | |
Y12 | Vanne magnétique « tiroir Vi - » ① | |
Z1 | Filtre de radiofréquence ② | |
① | Composant livré avec le compresseur | |
② | Le composant est livré avec le compresseur comme option. Un montage ultérieur est possible. |
Documents techniques complémentaires :
