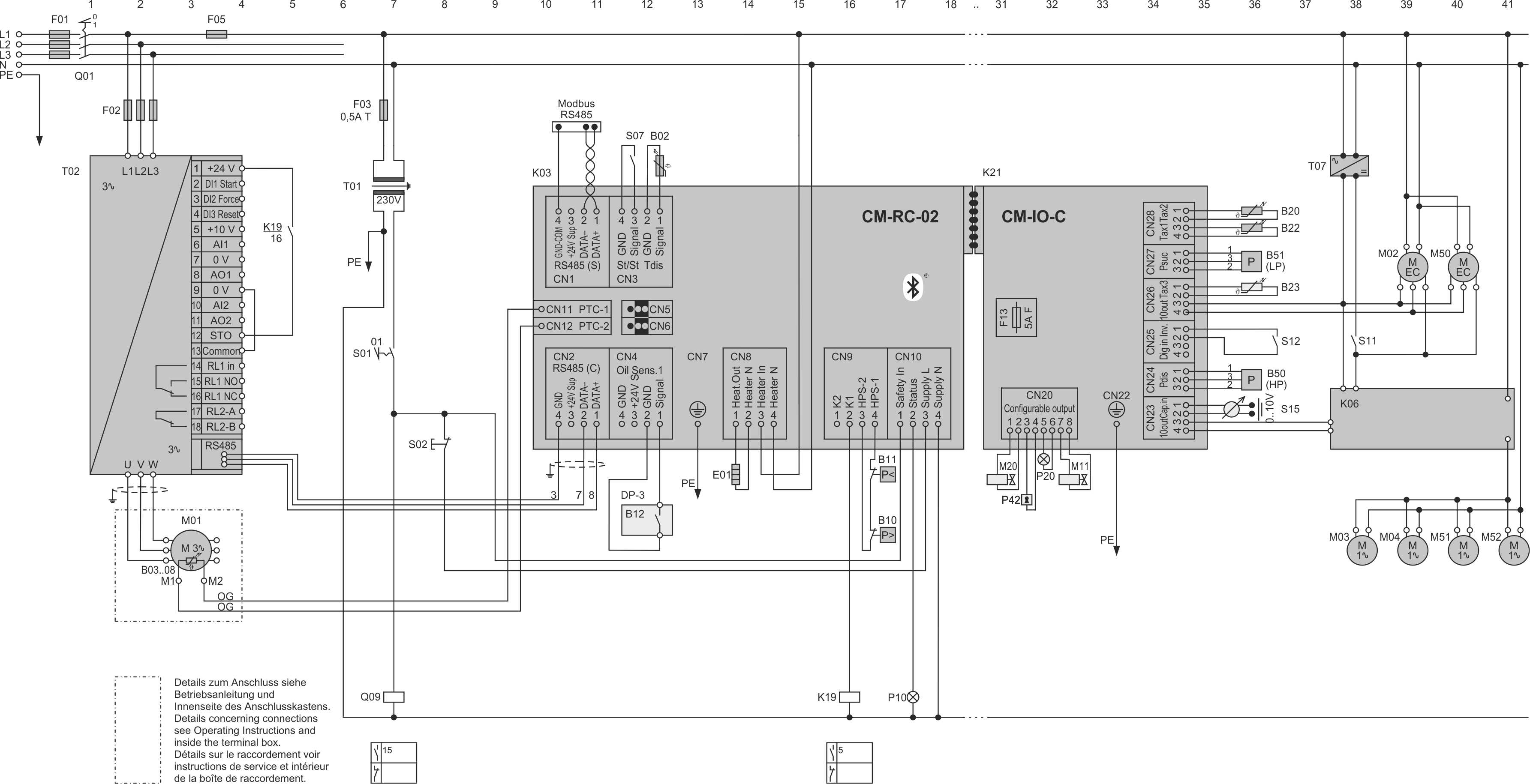
ECOLITE LHL7E avec CM-RC-02 et CM-IO-C
Dernière modification du schéma :
21.05.2025
Abbr. | Composant |
|---|---|
B02 | Sonde de température du gaz de refoulement |
B03 .. 08 | Sondes de température dans les bobinages du moteur |
B10 | Pressostat haute pression |
B11 | Pressostat basse pression |
B12 | Pressostat différentiel d'huile |
B19 | Sonde de température du gaz à pression moyenne |
B20 | Sonde de température du gaz d'aspiration |
B21 | Sonde de température optionelle |
B22 | Sonde de température ambiante |
B23 | Sonde de température d'enceinte réfrigérée |
B30 | Contrôleur de niveau d'huile |
B43 | Sonde du régulateur de niveau d'huile |
B50 | Transmetteur de haute pression |
B51 | Transmetteur de basse pression |
B57 | Transmetteur de pression optionel |
B58 | Transmetteur de pression moyenne |
B60 | Dispositif de protection contre les surcharges |
B61 | Dispositif de protection contre les surcharges pour second bobinage |
E01 | Réchauffeur d'huile |
F01 | Fusible principal |
F02 | Fusible du compresseur |
F03 | Fusible du circuit de commande |
F04 | Fusible du dispositif de protection du compresseur ou du module du compresseur |
F05 | Fusible du réchauffeur d'huile |
F13 | Fusible interne du dispositif |
K01 | Régulateur supérieur |
K03 | Module du compresseur |
K06 | Module de commande pour ventilateur(s) |
K13 | Relais de commutation étoile-triangle |
K18 | Relais auxiliaire : CF émet tension de puissance/champ tournante pour moteur |
K19 | Relais auxiliaire : chaîne de sécurité est activée |
K21 | Carte d'extension |
M01 | Moteur du compresseur |
M02 | Ventilateur additionnel |
M03 | Ventilateur 1 |
M04 | Ventilateur 2 |
M05 | VM pour injection de liquide avec vanne d'injection LI, RI ou CIC |
M11 | VM pour régulateur de puissance 1, CR1, CR+, CRII-2 ou démarrage à vide |
M12 | VM pour régulateur de puissance 2, CR2, CR- ou CRII-1 |
M13 | VM pour régulateur de puissance 3, CR3 ou CRII-3 |
M14 | VM pour régulateur de puissance CR4 |
M20 | VM pour conduite de liquide |
M41 | VM pour retour d'huile |
M50 | Ventilateur additionnel 2 |
M51 | Ventilateur 3 |
M52 | Ventilateur 4 |
P10 | Luminaire : défaut général |
P20 | Luminaire : commande d'installation est prête à fonctionner |
P42 | Message : retour d'huile est actif |
Q01 | Interrupteur principal |
Q02 | Contacteur pour premier bobinage (PW) ou contacteur principal (Y/Δ) ou contacteur du compresseur (démarrage direct) |
Q03 | Contacteur pour second bobinage (PW) ou contacteur triangle (Y/Δ) |
Q04 | Contacteur étoile (Y/Δ) |
Q05 | Fusible du transformateur de commande |
Q09 | Contacteur du réchauffeur d'huile |
S01 | Commutateur de commande (marche/arrêt) |
S02 | Déverrouillage du chaîne de sécurité du compresseur |
S11 | Contacteur de porte |
S12 | Interrupteur pour commutation depuis EcoMode vers LowSoundMode |
S15 | Signal externe pour la régulation de la puissance |
T01 | Transformateur de commande (exemple pour 230 V, requis suivant à EN60204-1) |
T02 | Convertisseur de fréquences (CF) |
T07 | Dispositif d'alimentation en tension pour tension auxiliaire |
Les couleurs des câbles sont notées conformément à la norme IEC DIN60757.
Documents techniques complémentaires :
