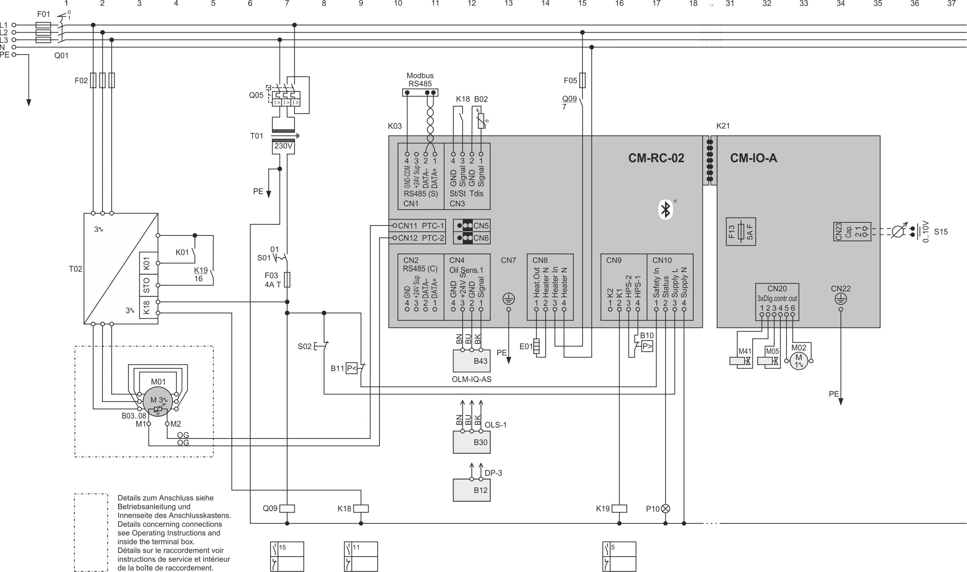
ECOLINE mit FU und CM-RC-02 mit CM-IO-A

Letzte Bearbeitung des Bilds:
27.02.2024
Abk. | Bauteil |
|---|---|
B02 | Druckgastemperaturfühler |
B03 .. 08 | Temperaturfühler in Motorwicklungen |
B10 | Hochdruckschalter |
B11 | Niederdruckschalter |
B12 | Öldifferenzdruckschalter |
B19 | Mitteldruckgastemperaturfühler |
B20 | Sauggastemperaturfühler |
B21 | Optionaler Temperaturfühler |
B22 | Umgebungstemperaturfühler |
B23 | Kühlraumtemperaturfühler |
B30 | Ölniveauwächter |
B43 | Sensor des Ölniveaureglers |
B50 | Hochdruckmessumformer |
B51 | Niederdruckmessumformer |
B57 | Optionaler Druckmessumformer |
B58 | Mitteldruckmessumformer |
B60 | Überlastschutzeinrichtung |
B61 | Überlastschutzeinrichtung für zweite Teilwicklung |
E01 | Ölheizung |
F01 | Hauptsicherung |
F02 | Verdichtersicherung |
F03 | Steuerkreissicherung |
F04 | Sicherung des Verdichterschutzgeräts oder Verdichtermoduls |
F05 | Sicherung der Ölheizung |
F13 | Geräteinterne Sicherung |
K01 | Übergeordneter Regler |
K03 | Verdichtermodul |
K06 | Ventilatorsteuermodul |
K13 | Stern-Dreieck-Umschaltrelais |
K18 | Hilfsrelais: FU gibt Leistungsspannung/Drehfeld für Motor aus |
K19 | Hilfsrelais: Sicherheitskette ist freigeschaltet |
K21 | Erweiterungskarte |
M01 | Verdichtermotor |
M02 | Zusatzventilator |
M03 | Ventilator 1 |
M04 | Ventilator 2 |
M05 | MV für Kältemitteleinspritzung mit LI-, RI- oder CIC-Einspritzventil |
M11 | MV für Leistungsregler 1, CR1, CR+, CRII-2 oder Anlaufentlastung |
M12 | MV für Leistungsregler 2, CR2, CR- oder CRII-1 |
M13 | MV für Leistungsregler 3, CR3 oder CRII-3 |
M14 | MV für Leistungsregler CR4 |
M20 | MV für Flüssigkeitsleitung |
M41 | MV für Ölrückführung |
M50 | Zusatzventilator 2 |
M51 | Ventilator 3 |
M52 | Ventilator 4 |
P10 | Leuchte: Sammelstörung |
P20 | Leuchte: Anlagensteuerung ist betriebsbereit |
P42 | Meldung: Ölrückführung ist aktiv |
Q01 | Hauptschalter |
Q02 | Schütz für erste Teilwicklung (PW) oder Hauptschütz (Y/Δ) oder Verdichterschütz bei Direktanlauf |
Q03 | Schütz für zweite Teilwicklung (PW) oder Dreieckschütz (Y/Δ) |
Q04 | Sternschütz (Y/Δ) |
Q05 | Steuertransformatorsicherung |
Q09 | Ölheizungsschütz |
S01 | Steuerschalter (ein/aus) |
S02 | Entriegelung der Verdichtersicherheitskette |
S11 | Türschalter |
S12 | Schalter für Umschaltung von EcoMode in LowSoundMode |
S15 | Externes Signal für Leistungsregelung |
T01 | Steuertransformator (Beispiel für 230 V, erforderlich gemäß EN60204-1) |
T02 | Frequenzumrichter (FU) |
T07 | Netzgerät für Hilfsspannung |
Die Kabelfarben sind entsprechend IEC DIN60757 notiert.
Weiterführende technische Dokumente: